1/4

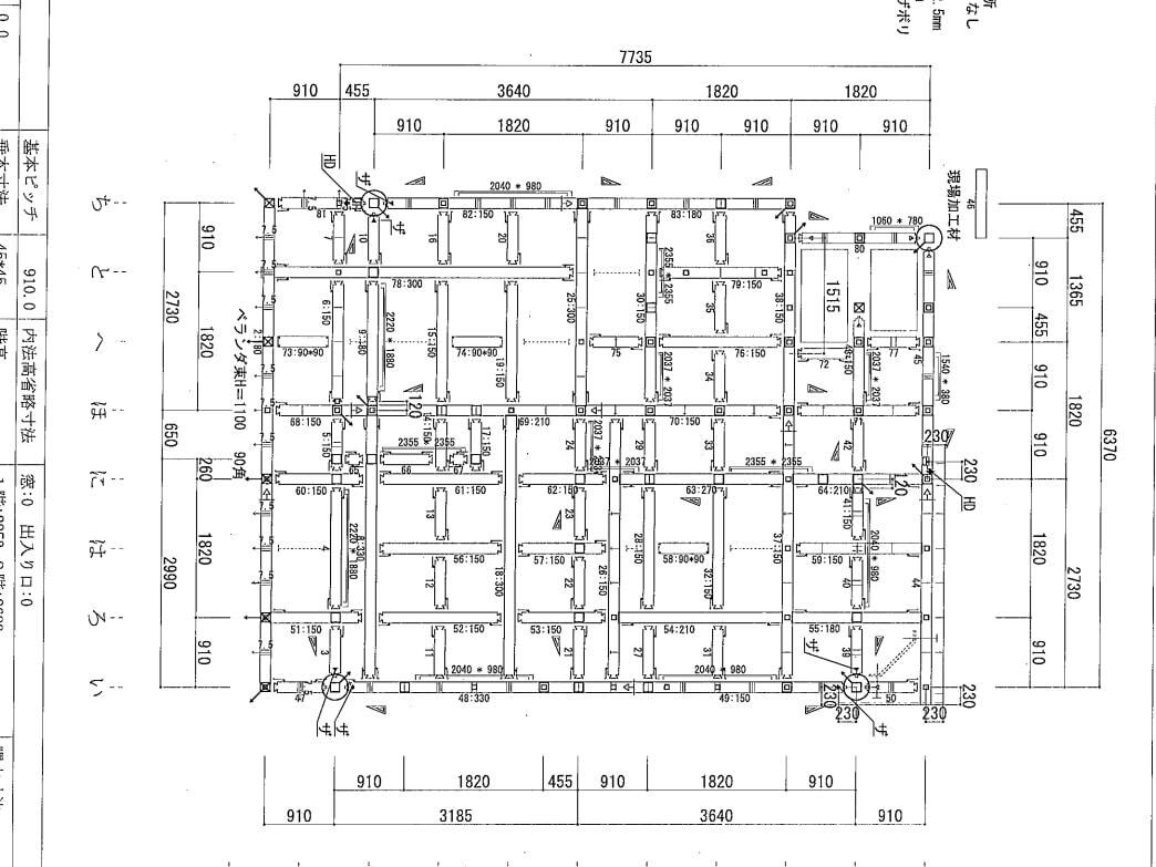
プレカット図面を作成します

1.jpg

¥50,000 税込

なら 手数料無料の 翌月払いでOK

ダウンロード販売の商品
購入後にDL出来ます (70596バイト)

この商品は5点までのご注文とさせていただきます。

サービス内容
プレカット図面・断面図の作成について

プレカット図面と断面図の作成を承っております。
まずはラフ案でも問題ございませんので、お気軽にお送りください。

<サービス紹介>
下記のお悩みを解決します
●設計図面がうまく作成できない
●納期が迫っているのに時間がない
●専門的な知識が不足している
●高品質な図面が必要なのにコストがかかる

<サービスの特徴>
●プレカット図面を迅速に作成します
●設計事務所様や工務店様への設計サポートを行います
●お客様のニーズに合わせた柔軟な対応
●厳しい品質基準を満たした高精度な図面提供

<サービスの流れ>
step1 依頼内容のご確認
step2 お客様の要望を詳しくヒアリング
step3 プロジェクトに必要な情報を整理
step4 プレカット図面の作成
step5 完成した図面を納品し、フィードバックを受ける
購入にあたってのお願い
日本で施工・建設をされている皆さまへ

信頼できる「プレカット加工」& 各種木材の調達先をお探しですか?
日本でこんなお悩みありませんか?

・木造住宅の現場を担当している
・工務店・建設会社・リフォーム業などを経営している
・図面作成や材料加工、木材仕入れがバラバラで大変…

当社は日本国内にプレカット工場との提携ネットワークを持ち、さらに各種木材の安定供給も可能です。
在日中国人施工業者様向けに、以下のサービスを提供しております:

・ 各種構造用木材の販売(杉、桧、集成材など)
・伏図・軸組図・部材表などの図面作成サポート
・プレカット加工 + 出荷調整まで一括対応
・ 中国語対応OK・施工現場の状況を理解したスムーズなやり取り
・在来軸組工法・金物工法・特殊サイズのご相談も可能です

対応可能な建築
* 木造一戸建て
* 民泊・投資物件
* 小規模オフィス・商業施設
* リフォーム・再建築物件の構造部分

・対応エリア:関東・関西・中部など全国主要地域配送可能
・中国語・日本語 どちらでも対応いたします

  • お支払い方法について

¥50,000 税込